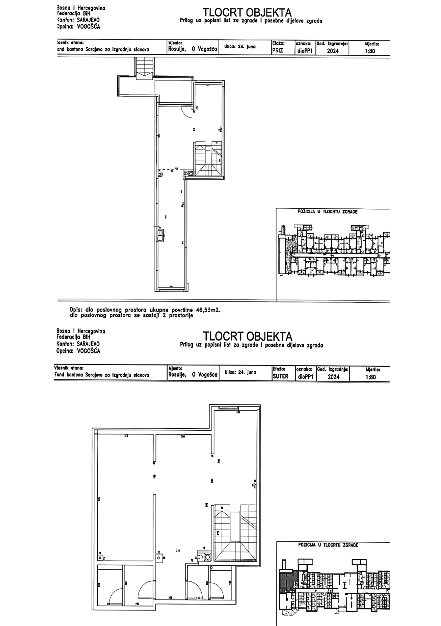
Dio poslovnog prostora u prizemlju se sastoji od 2 prostorije , dio poslovnog prostora u suterenu se sastoji od 3 prostorije i 2 wc-a

Poslovni prostor – Rosulje, Vogošća (Objekat A1-A)
U ponudi je poslovni prostor ukupne površine 114,92 m², smješten u objektu A1-A, u ulici 24. juni, naselje Rosulje, Vogošća.
Osnovne karakteristike:
-
Ukupna površina: 114,92 m²
-
Prizemlje: 2 prostorije
-
Suteren: 3 prostorije i 2 WC-a
-
Sistem završne obrade: „ključ u ruke“
Prostor je funkcionalnog rasporeda i pogodan za različite poslovne namjene (ordinacije, kancelarije, edukativni centri, agencije i druge uslužne djelatnosti).
Za dodatne informacije o cijeni, uslovima kupovine i terminu obilaska, molimo da nas kontaktirate putem kontakt forme ili na navedene brojeve telefona.